INTRODUCTION

FEATURES
① The light weight of the whole machine is conducive to floor loading.
② The hydraulic pump station and electric control cabinet are integrated on the lower support,which is convenient for on-site installation and reduces the failure rate.
③ The weight of the lifting unit is greatly reduced, with less site lifting capacity requirement.
④ Without balance arm, more flexible on the operation.
OPTIONALS
● Columns: can be customized columns of different length according to working application 4M, 5M, 6M,10M.
● Mode of climbing: floor climbing,shaft climbing.












STRUCTURE AND SCOPE OF WORK

SPECIFICATIONSS
TEMS | UNITS | HG28A-3R-II | HG32A-3R-II | HG33A-4R-II | ||
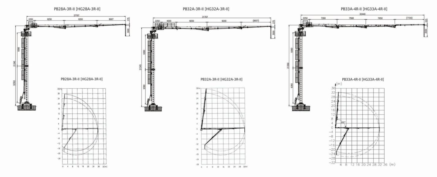
Performance | Max Radius of Placing Boom | m | 27.7 | 31.7 | 32.4 | |
Free standing Heightflb The Joint Between The End of The Boom And Slewing Platform) | m | 21.3 | 21.3 | 21.3 | ||
Slewing Range | / | 360° | 360° | 360° | ||
Circumstance Temperature | °C | -20-55 | -20-55 | -20-55 | ||
Power(subject to Customer) | / | 380V/50HZ | 380V/50HZ | 380V/50HZ | ||
Delivery Pipeline Diameter | mmxmm | 0133x4.5 | 0133x4.5 | 0133x4.5 | ||
Delivery Hose Diameter | "xmm | 5" x 300 | 5" x 3000 | 5" x 3000 | ||
Boom | 1st Section | Length | m | 10.5 | 14.5 | 9.51 |
Articulation | / | 0?86 | 0?86 | 0?86 | ||
2nd Section | Length | m | 9.2 | 9.2 | 7.56 | |
Articulation | / | 0~180 | 0~180 | 0~180 | ||
3rd Section | Length | m | 8 | 9.2 | 7.65 | |
Articulation | / | 0~180 | 0~180 | 0~180 | ||
4th Section | Length | m | / | / | 7.72 | |
Articulation | / | / | / | 0°~180° | ||
Type of Hydraulic Oil | Circumstance Temperature 5°C-55°C | °C | Hm46 Anti-wear hydraulic oil | Hm46 Anti-wear hydraulic oil | Hm46 Anti-wear hydraulic oil | |
Circumstance Temperature -20°C-5°C | °C | Hm32 Anti-wear hydraulic oil | Hm32 Anti-wear hydraulic oil | Hm32 Anti-wear hydraulic oil | ||
Motor | Power | kW | 11 | 11 | 18.5 | |
Hydraulic Pressure | MPa | 28 | 28 | 30 | ||
Mode of Slewing | / | Gear Slewing | Gear Slewing | Gear Slewing | ||
Application scenario | / | Floor Climbing or Shaft Climbing | ||||
Balance Arm | / | / | / | / | ||
Total Weight | kg | 16200 | 18150 | 20100 | ||
Max Lifting Unit | kg | 4100 | 4150 | 4800 | ||